Enfamiliehuse Entreprise Råhus og anlæg Om HHM Arbejdsmiljø Karriere
HHm 1-planshus

Enkelt. Elegant.
Enestående.

1-planshuse er det ideelle valg for jer med små børn og for andre, der ønsker let adgang til alle rum. Planløsningerne kan varieres i det uendelige. Det gælder også taget og byggestilen. Længehus. Vinkelhus. Eller måske H-hus? 1-planshuset skaber en naturlig sammenhæng mellem fællesområder, private værelser og ungdomsafdeling.

Åbent hus

Kom og besøg os

Et nyt hus er nok den største investering, som du kommer til at lave som privatperson. Derfor skal du også selv se, hvad vi kan, før du beslutter dig. Besøg vores smukke, funktionelle udstillingshuse.

Her møder du også vores byggerådgivere, som kan svare på dine boligspørgsmål og give dig gode råd. Skulle du falde for et af udstillingshusene, så tilpasser vi det helt efter dine ønsker: Indretning, materialer, lavenergi etc. Du bestemmer.

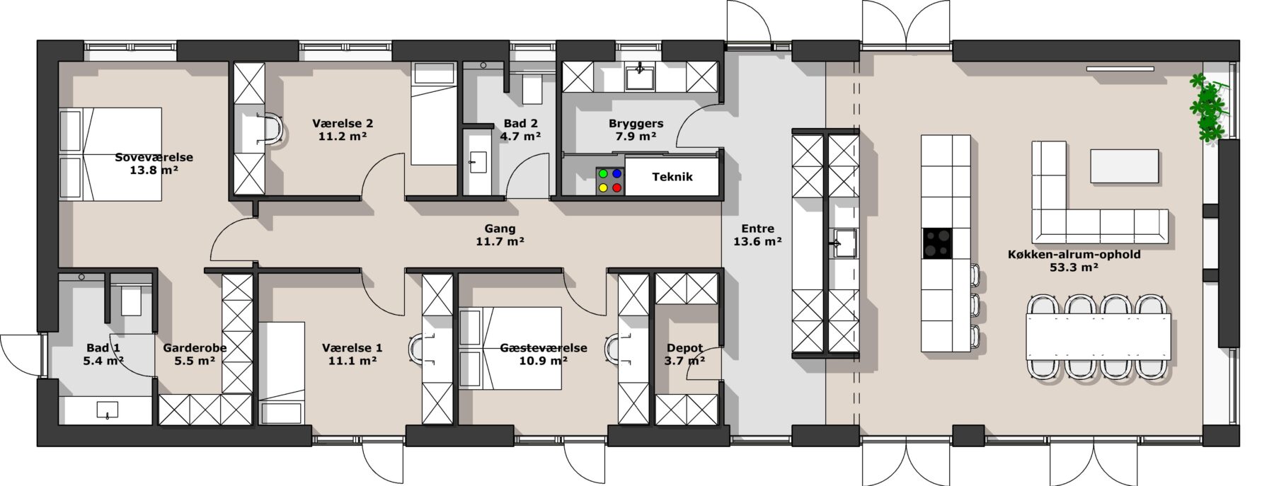
Plantegninger

Vores eller dine tegninger

Fem forskellige grunddesigns som udgangspunkt

Sæt fantasien fuldstændig fri og byg et helt unikt hus sammen med os. Eller få maksimal indflydelse på vores fem forskellige grunddesigns. Valget er dit, og vi rådgiver dig naturligvis.

1-planshus

Det ideelle valg
for småbørnsfamilier

1-planshuse er det ideelle valg for jer med små børn og for andre, der ønsker let adgang til alle rum.

Planløsningerne kan varieres i det uendelige. Det gælder også taget og byggestilen. Længehus. Vinkelhus. Eller måske H-hus? 1-planshuset skaber en naturlig sammenhæng mellem fællesområder, private værelser og ungdomsafdeling.

Du og familien får kæmpe fleksibilitet. I kan få vandret loft eller loft til kip? Store vinduespartier, smagfulde terrasser og hyggekroge både indendørs og udenfor.

1-planshus kan sagtens tilpasses en skrånende grund eller måske indvendige niveauspring.

1-planshus er tidløst og funktionelt og passer perfekt til den moderne livsstil, hvor komfort og æstetik går hånd i hånd. Skal hverdagen være let og ligetil? Så skal I overveje et 1-planshus.

Drømmen fra A-Z

Så let er det at bygge dit drømmehus

Du har behov for et nyt hjem til dig og familien, og det skal naturligvis passe helt perfekt til jer.

Du overvejer derfor at bygge selv, fordi du så får huset helt, som du gerne vil have det. Du vil have indflydelse på størrelsen, udformningen, materialerne. Ja, snart sagt alt. Men det er selvfølgelig en stor beslutning at købe nyt hus – og at bygge det selv. Derfor skal du have noget inspiration til at træffe beslutningen.

Ikon-Process-1-Idé VALGT@2x

Du samler inspiration og mødes med vores byggekonsulenter

I  fortæller os om jeres drømme, idéer og behov. Vi inspirerer jer, så I har en bedre forestilling om, hvad jeres særlige arkitekttegnede hus skal kunne for at ramme præcis jeres families behov.

Ikon-Process-4-Plantegning VALGT@2x

Plantegninger, materialevalg og tanker kommer på plads

Pludseligt er dit nye arkitekttegnede hus meget mere virkeligt. Nu sidder du nemlig med plantegningerne i hånden og kan forestille dig, hvordan huset kommer til at se ud. Det er et spændende øjeblik.

Ikon-Process-8-Byggeriet VALGT@2x

Byggetilladelse og byggeri går straks igang

Efter du har besluttet dig for husets struktur og udseende, sørger vi for byggetilladelse. Håndværkerne fra HHM ankommer og starter projektet op. Byggeriet tager ca. ni måneder.

Ikon-Process-9-Aflevering VALGT@2x

Nøgleaflevering til dit nye hjem og 1- og 5-årseftersyn

Håndværkerne har pakket sammen. Dit nye individuelle, arkitekttegnede hus står klar til at modtage dig og din familie. Efter 1 og 5 år gennemgår vi eventuelle mangler og fejl, for din tryghed.